40ft-2200 ハイグレード

40ft-2200-stan-0001

40ft-2200 ハイグレード

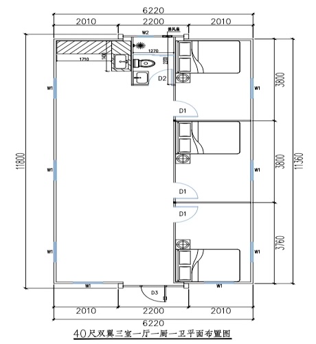
圧倒的な広さを誇る40ftモデル(約12m)は、事務所や店舗、仮設住居としても活用される大型ユニットです。
写真のモデルは、シンプルな外観に対して、内部をフルカスタムできる構造。
複数の窓・ドア・間仕切り設置も可能で、現場事務所やサロン空間としてもご利用いただけます。

■ 製品概要

販売価格6,028,000円(税込)
型番40-3-2200
外径L11800✖️W6300✖️2480mm
内径L11800✖️W6140✖️2200mm
床面積73㎡
折畳時サイズL11800✖️W2200✖️2480mm
重量6.7トン
電力容量100V/200V対応