
商品や設置についてお気軽にご相談ください。
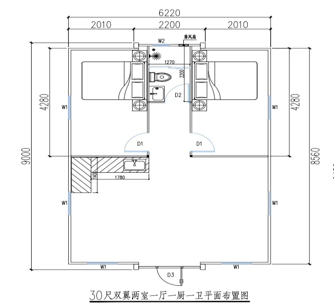
20ftではやや手狭…という方に選ばれるのが30ftモデル。
約9mの奥行きがあり、複数人での作業や物販スペースにも対応可能です。
間仕切りや棚設置など、室内のレイアウト変更にも柔軟に対応。
拡張性と居住性の両立をお求めの方におすすめです。
| 販売価格 | 4,378,000円(税込) |
|---|---|
| 型番 | 30-3-2200 |
| 外径 | L9000✖️W6300✖️2480mm |
| 内径 | L8740✖️W6140✖️2200mm |
| 床面積 | 56㎡ |
| 折畳時サイズ | L9000✖️W2200✖️2480mm |
| 重量 | 6トン |
| 電力容量 | 100V/200V対応 |